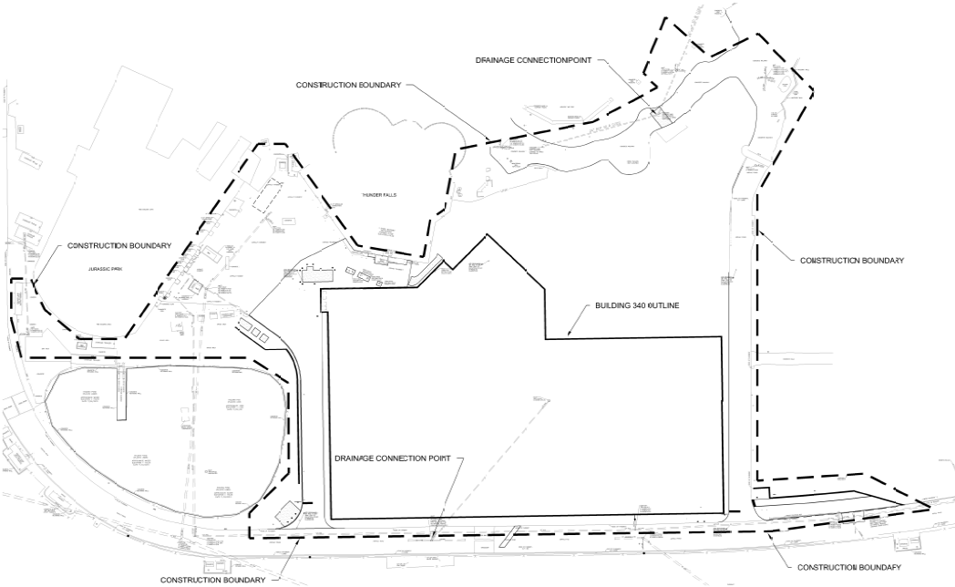
Les studios Universal d’Orlando ont remis au South Florida Water Management District les plans suivants sur lequel on peut voir la nouvelle attraction prévue pour Islands of Adventure d’après Orlando United
Cette nouveauté est pour le moment appelée « PROJET 340 » , elle occupera une superficie totale de 4.5 hectares, elle sera situé entre les zones ( Jurassic Park et Toon Lagoon ) qui comprendra un batîment de 2.5 hectares .
Des rumeurs disent qu’il devrait s’agir d’une attraction consacrée à King Kong…


.png)
.png)